Kings Cottage Custom Home – Cobble Hill
Kings Cottage is a secondary dwelling built on a rural property in the Cobble Hill area on Vancouver Island. The clients’ extended family lives in the main residence, and this addition to the property created sustainable longevity for the family in the Cowichan Valley.
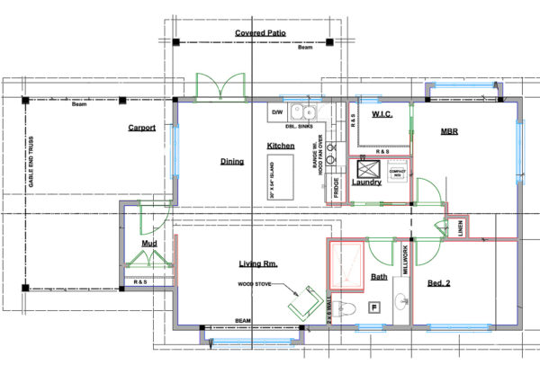
The cottage is a 915 square foot, 2 bedroom, 1 bathroom home. It has expansive 13’6″ vaulted ceilings in the main living area. The cottage was designed to be fully accessible with age-in-place concepts. Examples include utilizing 36″ wide doors throughout and a curbless shower that a person in a wheelchair can use.
This cozy cottage was built with a focus on sustainability and green building. The home is surrounded by a 2nd growth forest, so the clients chose materials that ensure fire protection. We utilized some of the timber in the building of the cottage from trees taken down to make space for the cottage.
The clients also emphasized energy efficiency. This includes upgraded insulation and windows, as well as a heat-recovery ventilation system. As a result, the new homeowners enjoy greater thermal comfort and reduced energy usage. They were able to receive a substantial rebate from the provincial government for building a home that is 50%+ more energy efficient than a normal home.
Construction started on this custom home in October 2020, and was completed in April 2021.
Kings Cottage Build Partners:
- House Design: Step One Design
- Windows: Thermoproof
- Electrical: GreenCoast Electric
- Plumbing: FBM Plumbing
- Woodstove: Pacific Energy
- Roofing: Coast Roofing
Interested in building your own custom home? Contact us, we’d love to hear your ideas.