Mill Bay Luxury Oceanfront Home
Showcasing Custom Coastal Living: A Dream Home in Mill Bay
At Made to Last Custom Homes, we believe a home should reflect both lifestyle and location. Our newest custom build in Mill Bay, BC, is designed to do exactly that. Our clients brought us their vision in the form of floor plans. Together, we collaborated to perfect the design, ensuring every detail reflected their dream home.
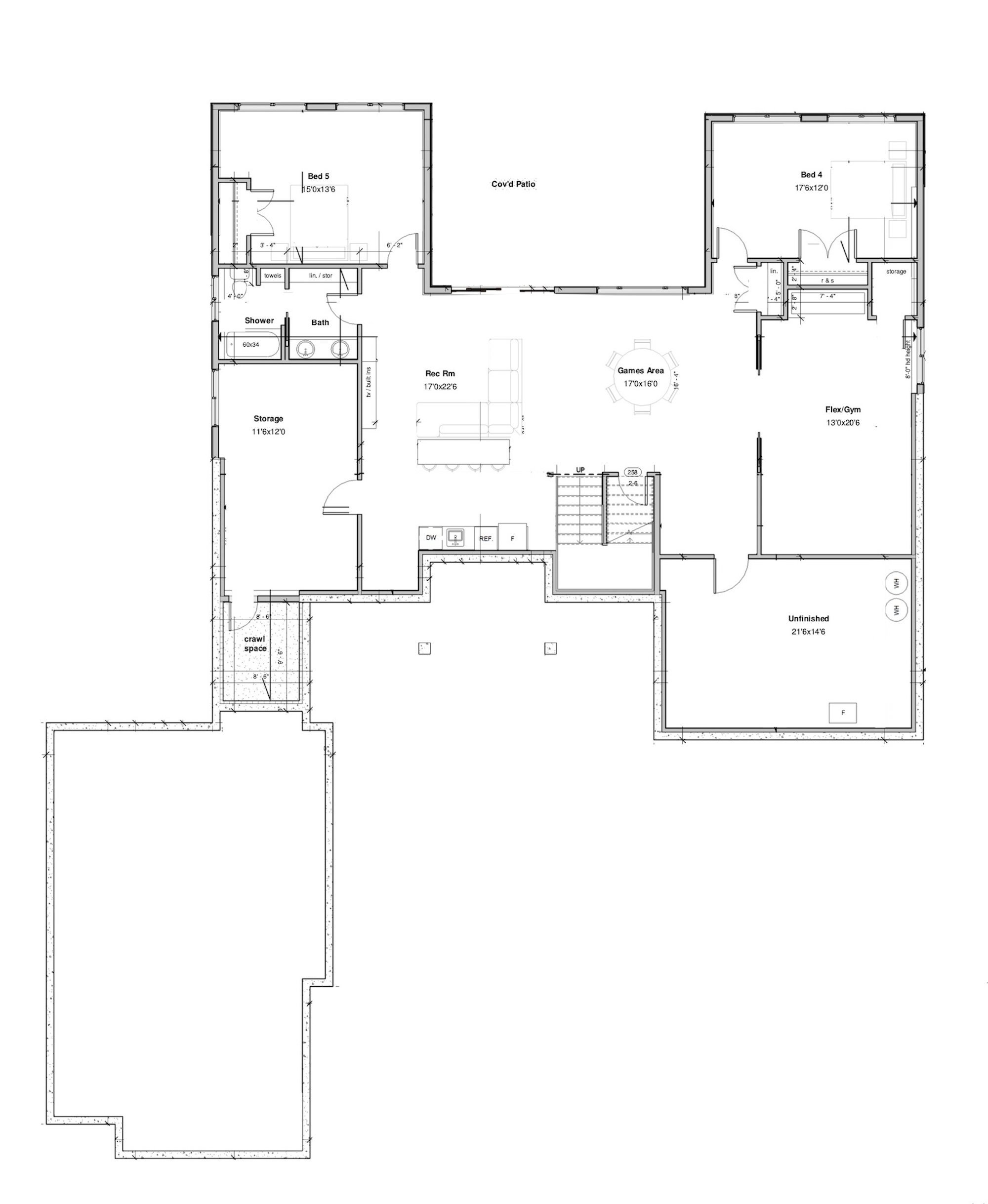
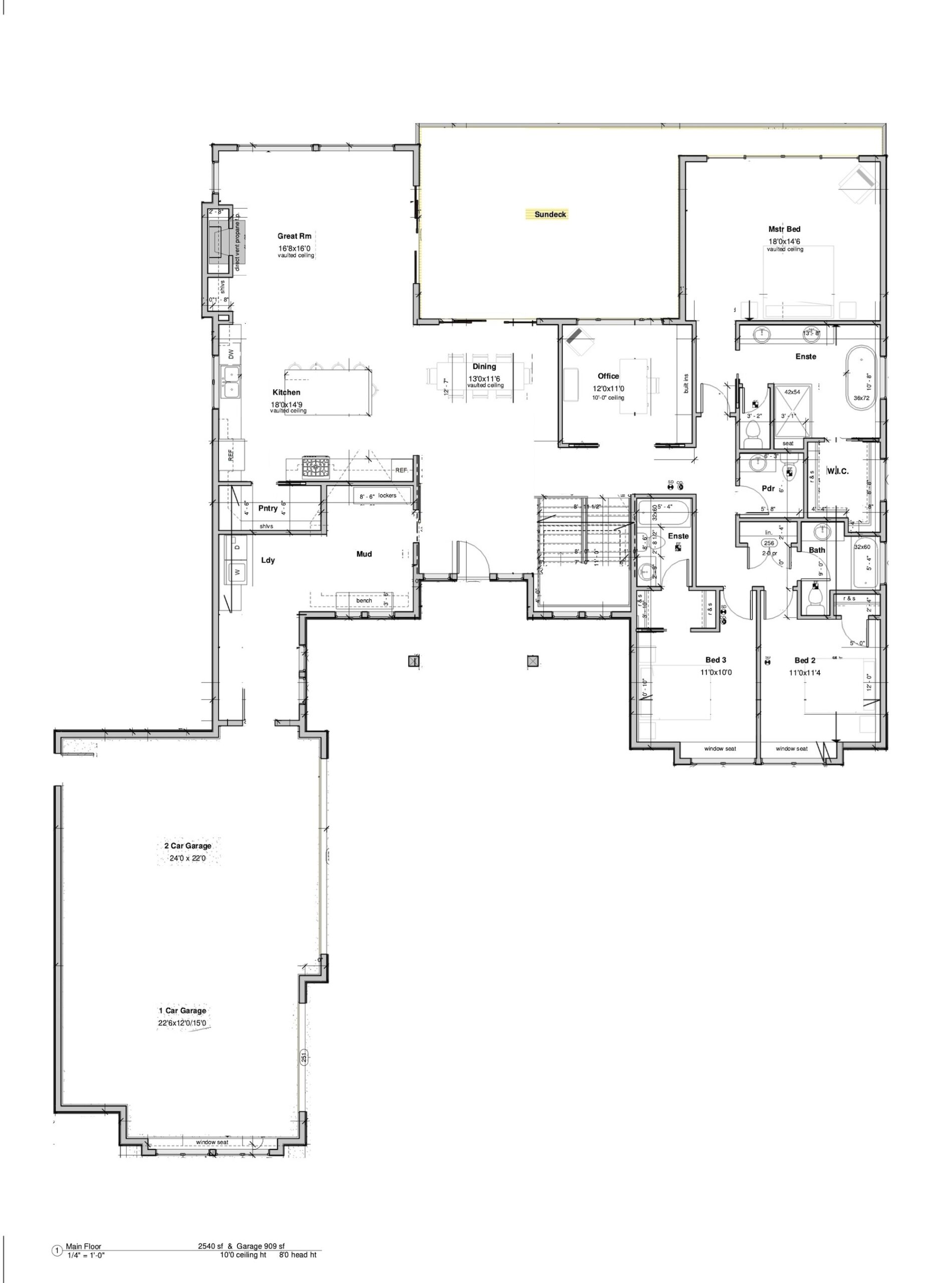
Set on a 2-acre oceanfront lot, this 4,423 sq. ft. home blends luxury, functionality, and the beauty of West Coast living. The residence sits within a private gated community of luxury oceanfront homes, offering peace, security, and exclusivity. A gated entry and full property fencing provide both privacy and a sense of retreat.
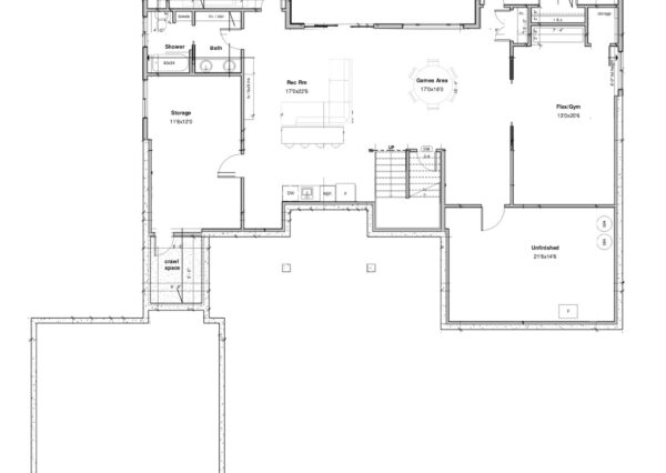
Inside, the design celebrates light, space, and craftsmanship. The home spans two levels with five bedrooms and four and a half bathrooms. Every room is finished with custom millwork and cabinetry, adding warmth, character, and enduring quality. From built-in storage to elegant detailing, these touches make the home feel truly personalized.
The floor plan balances work and leisure. A private office supports focus, while a recreation room with a built-in bar, a games area, and a fitness room invite relaxation and fun. The open-concept living areas are filled with natural light and connect seamlessly to the outdoors.
Outdoor living is just as inspiring. A 489 sq. ft. sundeck provides sweeping ocean views, while a covered patio below allows enjoyment in any season. The attached 909 sq. ft. three-car garage offers both storage and convenience, integrated smoothly into the home’s design.
Every detail, the layout, finishes, and craftsmanship, reflects our passion for creating custom homes on Vancouver Island. This residence is more than a structure. It is a personal sanctuary, built to reflect our client’s vision and the unique charm of coastal living in Mill Bay.
This oceanfront home is a luxury design and a complementary addition to other oceanfront properties in the Mill Bay area. If you would like to view similar homes, check out our Shawnigan Lake Custom Home and Forest Estate.
Are you looking to build your own forever home? We would love to hear from you! Contact us today.
Client Testimonial:
“We’ve completed four projects with Made To Last, and every experience has been exceptional. Their honesty, transparency, and clear communication gave us complete confidence, while their craftsmanship and attention to detail are truly unmatched. We’d 100% recommend them.”
– Lindsay J.
Luxury Oceanfront Build Partners:
- Windows: Euroline Windows
- Cabinetry: Latitude Fifty
- Flooring: Island Floor Center Ltd.
- Truss and Floor System: Victoria Truss
- Plumbing: FBM Plumbing & Heating
- Gas Fireplaces: South Island Fireplace & Spas
- Electrical: Surepoint Group
- HVAC: Exchange Energy
- Metal Gate: West Coast Custom Gates
- Countertops: Rock Solid Countertops
- Doors: Windsor Plywood