Salt Spring Escape – Custom Home with a View
This Salt Spring custom home was designed in partnership between the new homeowners and Made to Last Custom Homes. Our clients are based on the East Coast and plan to use this home as their vacation retreat from big city life.
The home was positioned to take advantage of the stunning ocean views of the property. Large windows and limiting tree removal were priorities for our clients.
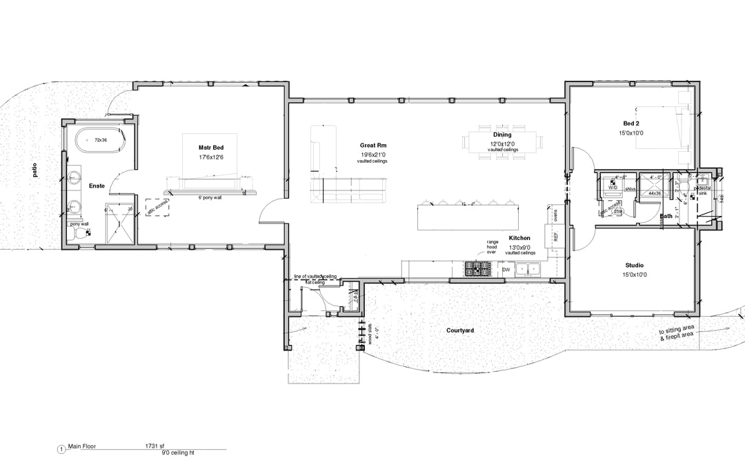
This custom home features 1,731 sq.ft. of indoor living space. It is all on one level. The design includes 2 bedrooms and 2 bathrooms, plus a private studio space. There are vaulted ceilings throughout. The large windows on the ocean side capture the amazing channel views between Salt Spring Island and Vancouver Island.
The open concept Great Room includes a large 12 foot kitchen island. But what is most exciting is the two pass through windows that open onto the courtyard at the front of the home.
Salt Spring Escape includes an art studio space with sliding doors that open the room to the outdoors. The owner also plans to add a personal touch by painting scenery and patterns on the interior doors of the home.
This Salt Spring custom home will be a relaxing escape for our homeowners. Are you looking to build your own forever home, or a vacation home for you and your family? We would love to hear from you! Contact us today.
Check out some of our other Gulf Island projects, such as our award-winning Thetis Transformation or Thetis Island Oceanfront Renovation.
Client Testimonial:
Working with Made to Last was the best decision! They made our dreams come true from the design to building process. They translated what mattered most to us while delivering on time and on budget. Simply exceptional! – Julie Lottering
Click to Read What Other Happy Clients Are Saying
Salt Spring Escape Build Partners:
- Design: McNeil Building Designs
- Cabinetry: Cowichan Woodwork
- Windows: Complete Windows
- Plumbing: FBM Plumbing & Heating
- Electrical: Surepoint Group
- HVAC: Exchange Energy
- Roofing: Coast Roofing